SUNRISE TOURING COMPANY
and
TROIKA ENTERTAINMENT
Presents
TOPOL
in
FIDDLER ON THE ROOF

National Tour

PRODUCTION DESIGN HOMEPAGE

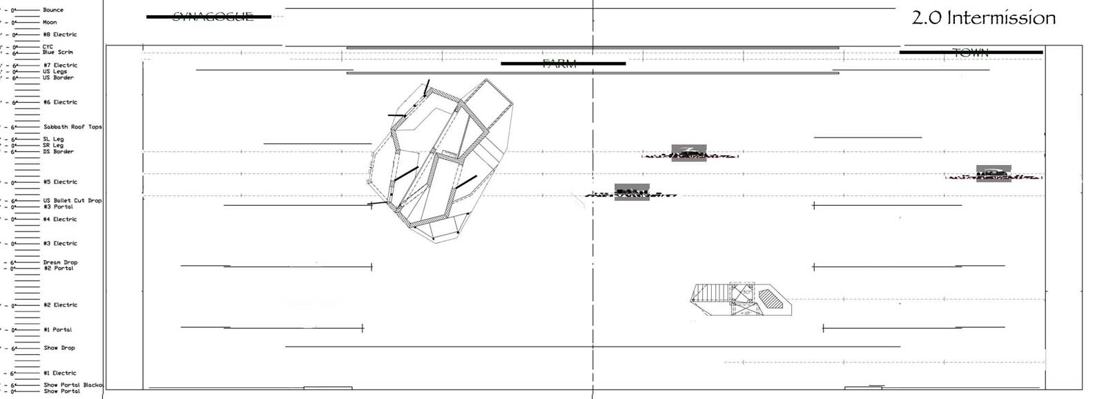
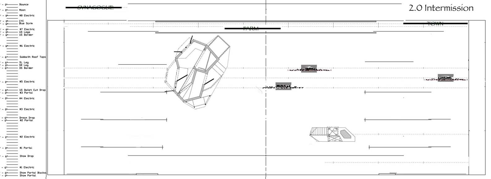
RUN SHEETS Act TWO

Production Direction: Sammy Dallas Bayes
Set Design: Steve Gilliam
Costume Design:
Lighting Design: Ken Billington
Sound Design:
Musical Director:
Production Manager: Geoff Quart
Production Stage Manager:
Assistant Director/Choreographer: ]
General Management: Troika Entertainment
SLG DESIGN & CREATIVE TALENT
210 . 494 .7373 slgdesign@satx.rr.com
Please click the links below for sketches and drawings. The designs created for Troika Entertainment's production of FIDDLER ON THE ROOF are the property of SLG Design & Creative Talent and Steve Gilliam. Contact us if you are interested in these or other production designs for your theatre.
Click on the following links. The House study may prove helpful. The 1/4 composition is a large file. 1/8 is smaller, but still a large file. I mention this as it may be easy to view the plans posted sequentially below.
House Movement Study 1/4 Act One 1/8 Act One
1/4 Act Two

Click to Enlarge