
The Alumni Project
Strayer-Wood Theatre Celebrate 30 Years
April 11 - 20, 2008
Arthur Miller's
DEATH OF A SALESMAN
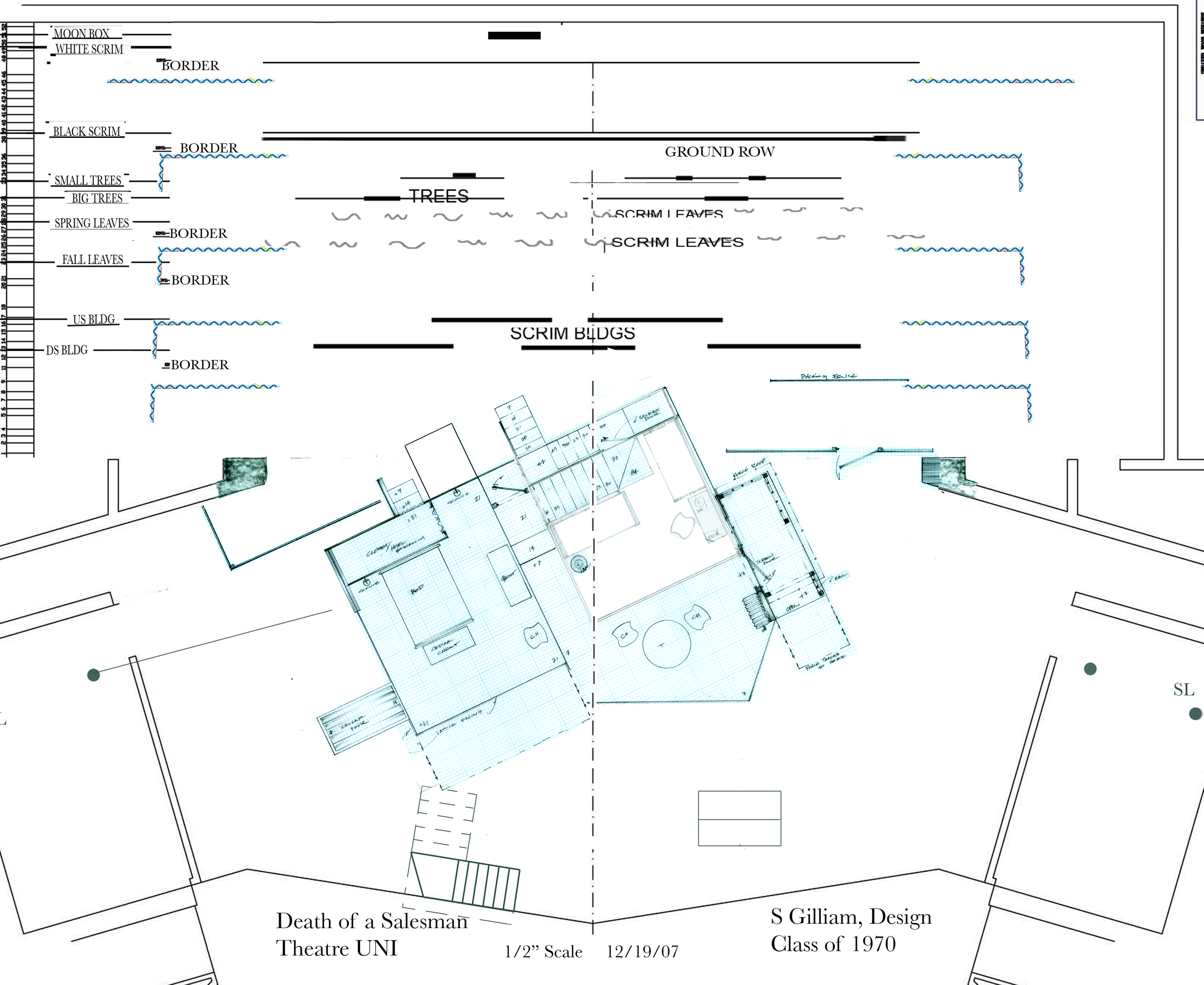
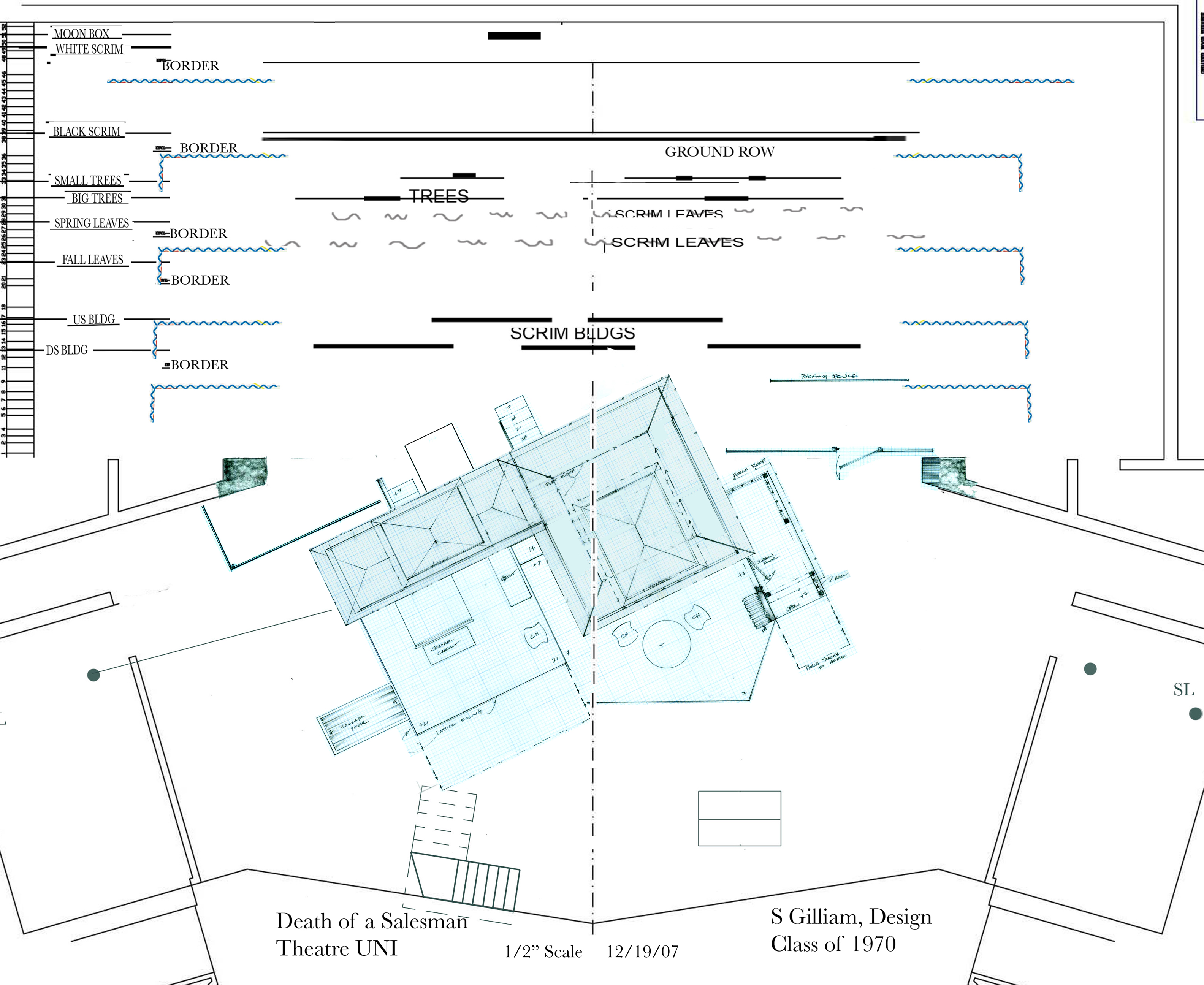
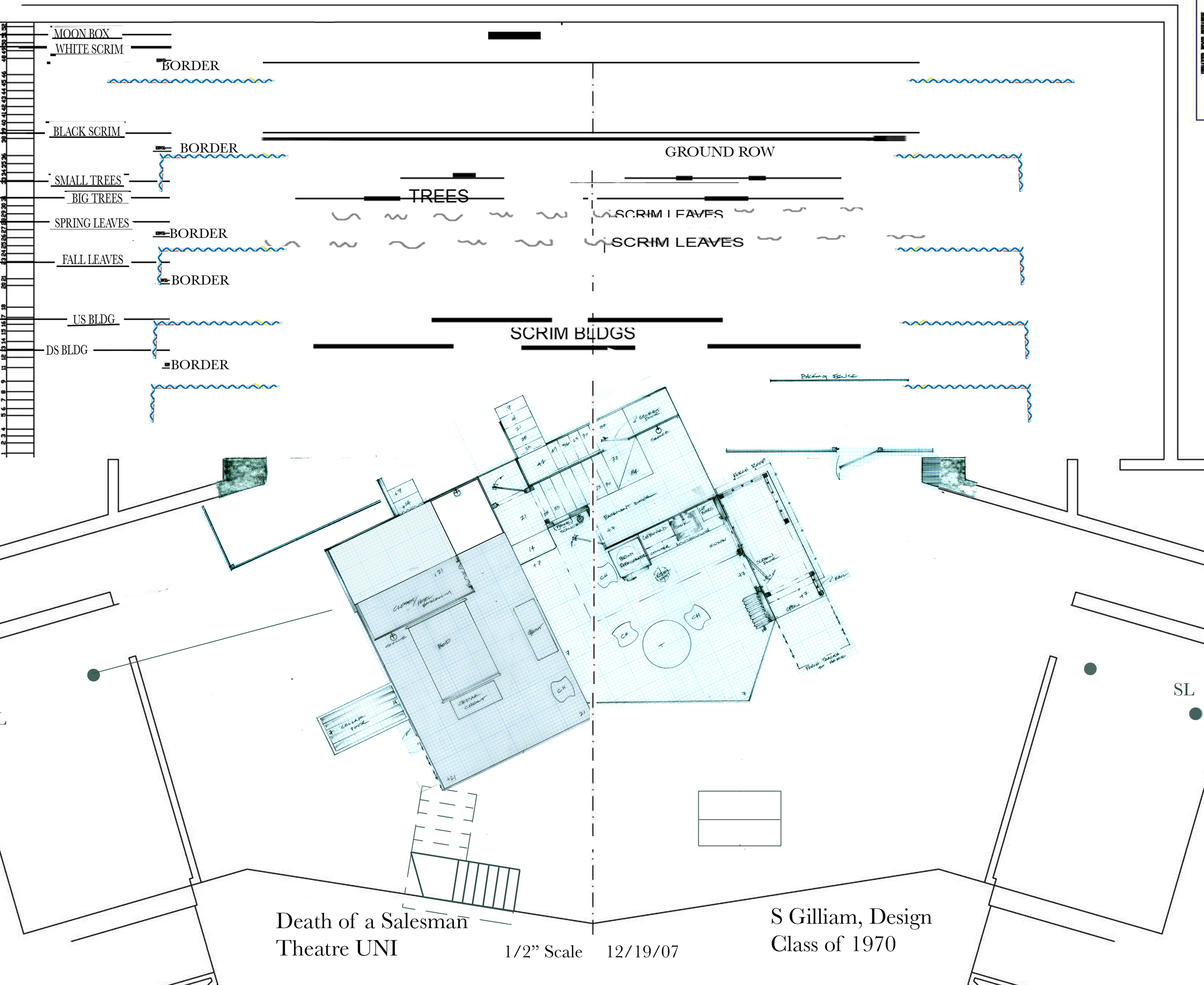
1/2" Ground Plans
Producer: Eric Lange
Direction: Larry Paulsen
Set Design: Steve Gilliam
Costume Design: Carol Colburn
Lighting Design: Dick Devin
Sound Design: Aaron De Young
Properties: Mark Parrott
Technical Direction: Ron Koinzan
Production Manager: Jascenna Haislet
Production Stage Manager: Vanessa Sheppard
CLICK TO ENLARGE
The following plans are 72 dpi 1/2" Ground Plans. They are 44" Wide and 36" High.
DOWNSTAIRS PLAN
BOYS' BEDROOM
HOTEL
ROOF PLAN
|
|
|
|
DESIGN HOMEPAGE |
SLG |