The St. Louis MUNY
MUNY 2008
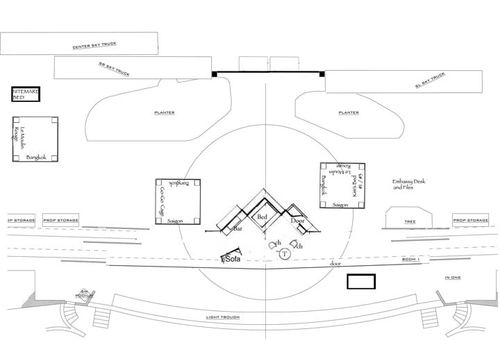
MISS SAIGON
ACT Two Ground Plans 030108
Producer: Paul Blake
Production Direction: Darren Lee
Musical Director:
Choreographer:
Set Design: Steve Gilliam
Costume Design: Robert Fletcher
Lighting Design: Mitch Dana
SLG DESIGN & CREATIVE TALENT
210 . 494 .7373 slgdesign@satx.rr.com

16Intermission.jpg

17Bui-DoiFilm.jpg

18HotelSceneChange.jpg

19BangkokStreet.jpg

20LeMoulinRouge.jpg

21Kim'sBedNiteMare.jpg

22EmbassyFences.jpg

23BreakThrough.jpg

24Kim'sBed.jpg

25Street.jpg

26BangkokHotel.jpg

27Street.jpg

28AmericanDream.jpg

29Kim'sSuicide.jpg

30Bows.jpg
| 022908 Boom Study | ||
| 2001 Photo B | 2001 Photo C |

| Kim 3 & 4 Backing 5/25 |
|
|
5/21/01 |
|
|
|
|
|
|
|
5/15/01 |
|
5/12/01 |
|
|
|
|
|
|
The Index of Designs link includes sketches, drawings and photos from additional SLG Designs. The work at these sites has been created by Steve and Sam Gilliam and are the property of SLG Design & Creative Talent . Contact us if you are interested in these or other production designs for your theatre. We can and do adapted designs for individual theatre. slgdesign@satx.rr.com
|
|
DESIGN HOMEPAGE |
SLG |