SEA WORLD OF TEXAS

Sea Lion Show '05
The Cannery Row Capers

Director: Doug Minerd
Production Design: Steve and Sam Gilliam
Project Manager: Al Torres
Architects: WestEast Design Group
Special Effects Consultants: TW Design
Scenic Construction by: SRO

SLG Design & Creative Talent
210 . 494 . 7373 slgdesign@satx.rr.com

Notes

ICE CUBE Revised Ice Cube Position

Revised Notes 2/2/05 Original Notes 1/12/05

Notes BAckside Bluesail Cod Fish Diner
Diner Alcove Dock Ice House Office Sierra
Snob Water Tower White Star

Crates 1/5/05

Misc Crates
November Revisions
Ramp Door
Mist GP Mist Elevations
Wiring Homepage Floor 11/28

October Revisions

Rear Elevation 10/11/04
Backside Consideration 10/11/04
Walrus Comparison
Rear Elevation 10/09/04 Backside Consideration 10/09 10/12 Rear Elevation
Revised Walrus Logo 10/12
Codfish Sign
Revised Speaker Sign
Warehosue w/Sign 10/13
Ice Building 10/14
Final Ice 10/15
Diner Pictures Karen Prop Color Floor Elevation
Front Elevation
Rear Elevation
New Ice Building

Prop References

OFFICE 1 OFFICE 2 OFFICE 3 File Water Cooler
Desk Ottoman Hat Rack
CAFE 1 CAFE 2 Refrigerator Counter Juke Box Color
Juke Box Draft Soda 1 Soda 2 Soda 3
Ice 1 Ice 2 Otter Basket Pay Phones
Pier 1 Pier 2 Pier 3
Office Picture Frames
Office Key

SRO Paint 9/24/04

Paint Sample
9/24/04
1
2
3
4
5
Final Approved Codfish Building Signage

SRO Paint 9/24/04

1
2
3
4

SRO Paint 9/23/04

WALRUS
LOGO
CENTER BRICK
REPLACES FO4
SPEAKER SR
DETAIL FO2A
BACK CENTER
B06
BACK SIERRA
REPLACES B03
CODFISH CAFE
SIGN F01

SRO Paint Elevations References 9/20/04

Walrus Logo
Floor Elevation
Front Elevation
FRONT F01 F02 F02A
F03 F04 F05
F06 F07 F08
F09 F10 F11
F12 F13 F14
BACK B01 B02 B03
B04 B05 B06
B07 B08 B09

Codfish Logos 9/12/04

#1 #2 #3 #4 #5

New Elevations 9/12/04

FRONT ELEVATION
BACK ELEVATION
CODFISH CAFE
SPEAKER SIGN
BACK SIERRA BLDG

MEADOWS THEATRE
Halloween Concept

Design 5/27/04

Front Elevation
Ground Plan
SR Section
SL Section

Detail Studies 5/27/04

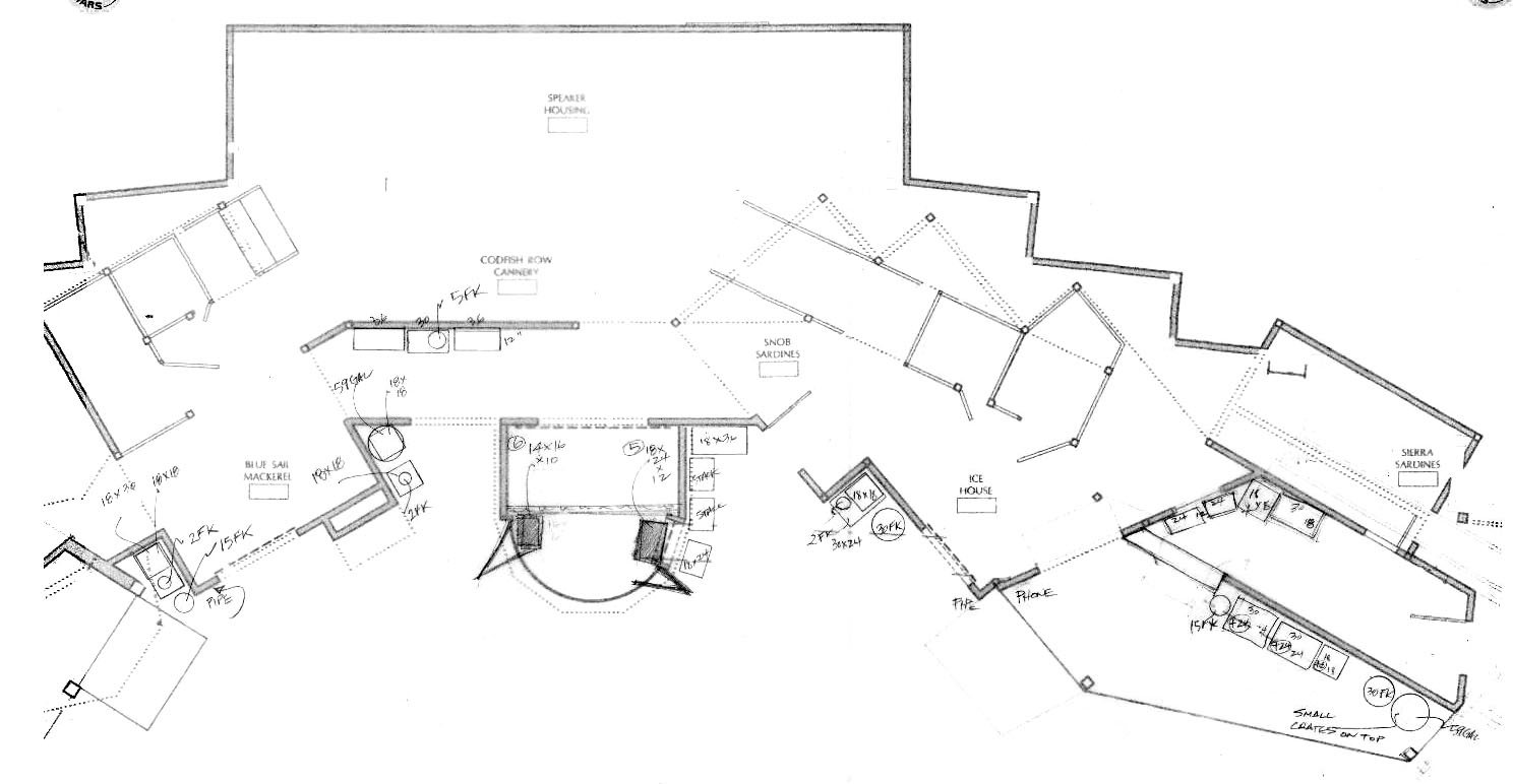
Ground Plan Notations
Backside Profiles
bluesail.jpg
bluesail2.jpg boiler.jpg codfish.jpg
diner1.jpg diner2.jpg dock.jpg
icehouse.jpg icehouse2.jpg office.jpg
snob.jpg

Preliminary 4/4/04 - 5/25/04

Concept Sketch by
Joe Peczi 4/4/04
Representative SLG Protfolio
Tooltime Ground Plan
4/11//04 Concept
4/18 Ground Plans
4/19 Sketch
4/19 Color Sketch
4/20 Overlay
4/24 House Right Section Study
4/24 Color Studies
430 Revised Sketch
Scene Design 5/01
5/05 Ground Plan, Plus
Al Question 5/25
Tool v. CodFish GP Comparisons

Complete Index of SLG Designs